AGA
AGA


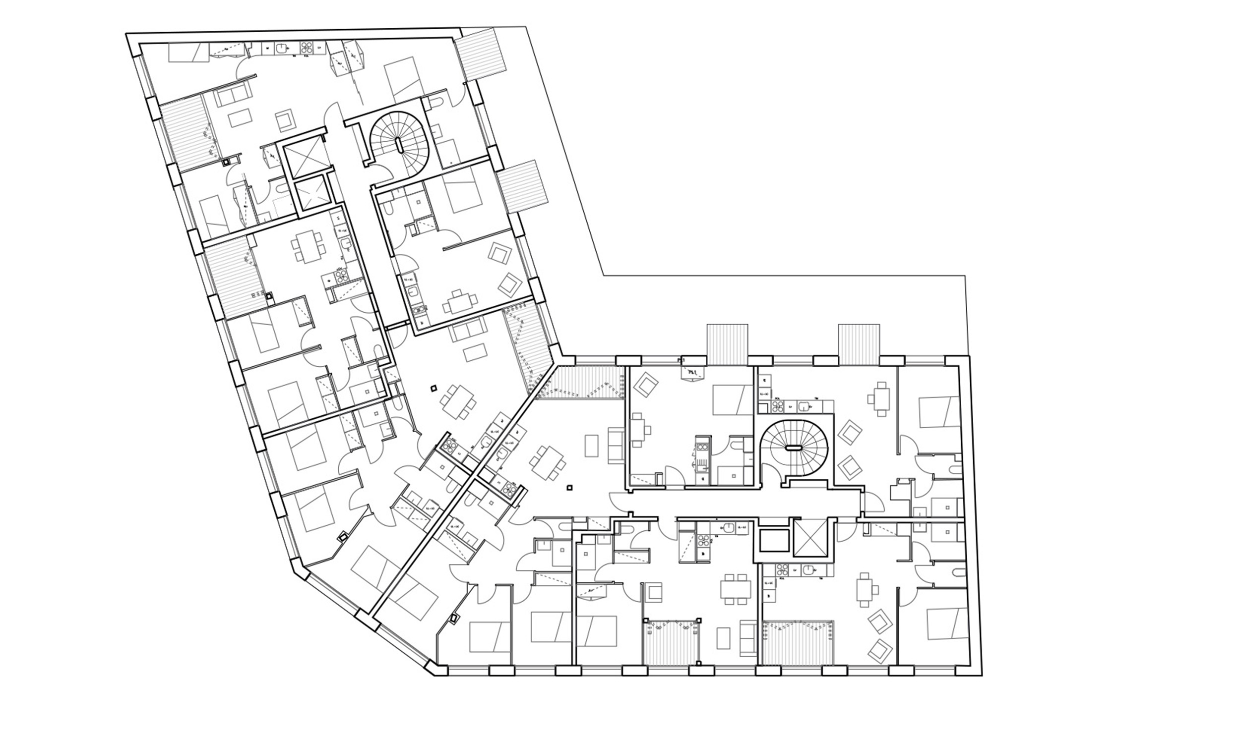
45 social housing units — Pantin (93)


The 45-unit social housing project is located at the junction of Pantin and Aubervilliers, in an area shaped by its industrial and artisanal past. Once a working-class fringe lined with factories and warehouses, this canal-side site now embodies a transition towards a mixed and inclusive urban fabric.

Reinterpreting local industrial archetypes, the gridded volumes engage in dialogue with the surrounding city while evoking the memory of the place. The façades in reused brick recall the former factories of the neighbourhood, while the bio- and geo-sourced materials used inside underpin a strong bioclimatic approach.

The hybrid timber–concrete structure, green roofs and winter gardens express an approach that balances long-term durability with respect for context. On the courtyard side, a forest garden fosters biodiversity and the development of local flora and fauna, making the ensemble a living environment that is at once robust, generous and open to its surroundings.



Programme: construction of 45 dwellings, a commercial unit and landscaping of external areas

Floor area: 3,303 m² GFA

Budget: €7.5M excl. VAT

Project: 2024–2028

Environmental strategy: RE 2020 (2025 threshold); timber construction; reuse

Certification: NF Habitat HQE Excellent / BiodiverCity