52 Collective Housing Units — Chennevières-sur-Marne
52 COLLECTIVE HOUSING UNITS | CHENNEVIERES-SUR-MARNE
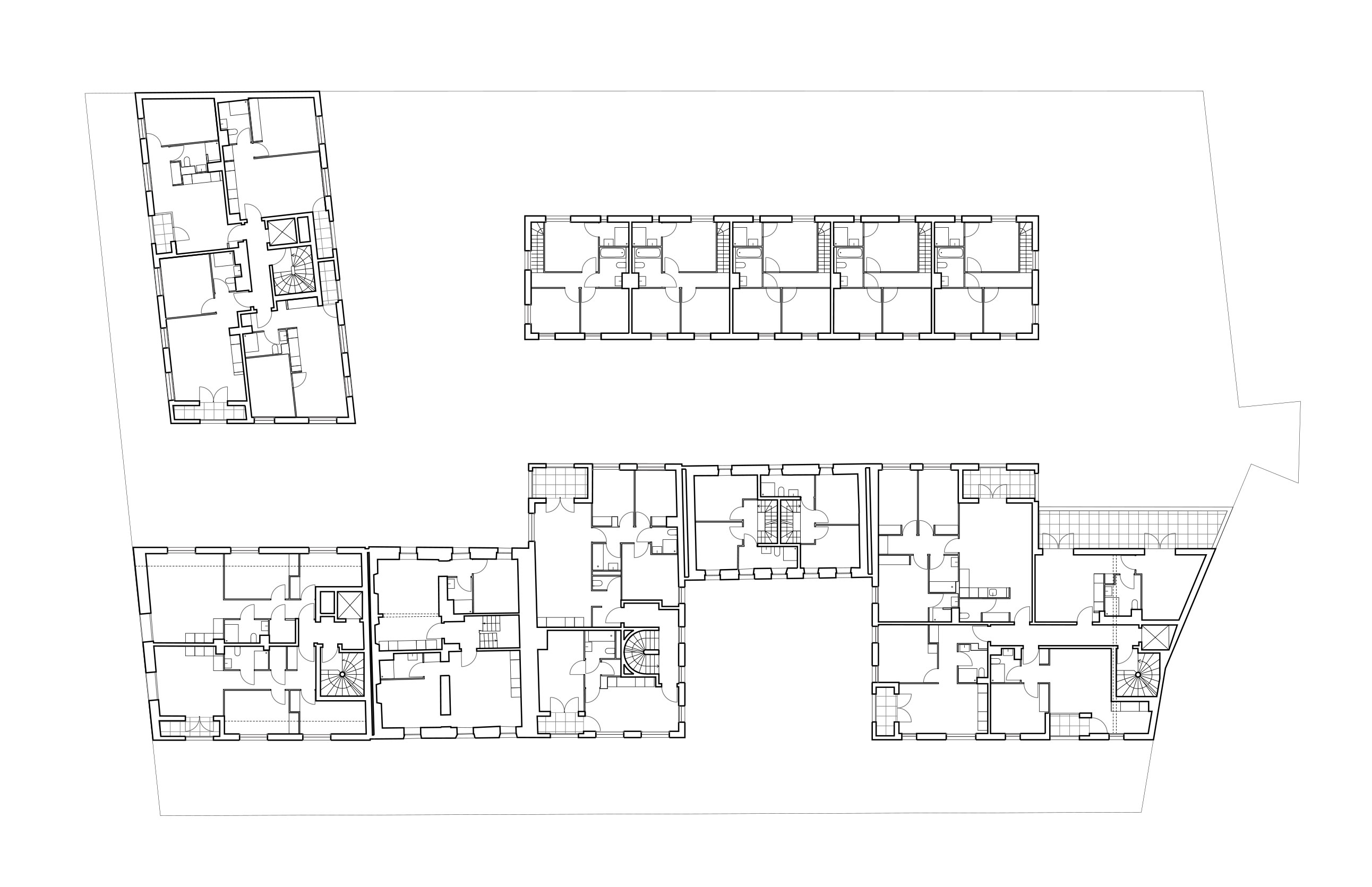
The 52 collective housing units will be located on an irregular trapezoidal plot of land in a sparsely populated residential and pavilion urban fabric not far from the banks of the Marne river. As part of the project, two existing buildings listed on the register of built heritage elements to be protected will be rehabilitated and transformed into housing. The other buildings will be demolished to make way for new constructions.
The 52 collective housing units will be located on an irregular trapezoidal plot of land in a sparsely populated residential and pavilion urban fabric not far from the banks of the Marne river. As part of the project, two existing buildings listed on the register of built heritage elements to be protected will be rehabilitated and transformed into housing. The other buildings will be demolished to make way for new constructions.
Program: 52 Collective Housing Units
Area: 3,027 m² SDP
Budget: €5.2 million excl. tax
Project: 2022 - 2023
Client: Private
Area: 3,027 m² SDP
Budget: €5.2 million excl. tax
Project: 2022 - 2023
Client: Private